График работы:
с 09:00 до 19:00
Строительство каркасных и брусовых домов
График работы:
с 09:00 до 19:00
romanoff.n1kit@mail.ru

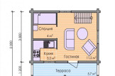
Дом "Белла"

Дом "Белла"
Площадь
70 м²
Размер
6 × 8 м
Количество этажей
2
Количество комнат
2
Срок строительства
6 месяцев
Возможные материалы
профилированный брус
клееный брус
Стоимость
от  1 200 000 ₽
Оставить заявку
Комплектация

Гарантии

 

5 лет на сруб, материалы и строительство

Эскизный проект дома

 

Наши специалисты наглядно покажут, каким будет ваш дом

Весь необходимый для строительства материал

 

  • материал для строительных лесов

  • перекрытия (лаги первого и второго этажей) брус сечением 100 х 200 мм с шагом 590 мм

  • стропильная система пиломатериал сечением 50 х 200 мм 

  • обрешетка 

  • межвенцовый утеплитель джут

  • берёзовые нагеля Ø 25 мм

  • все расходные и сопутствующие материалы

  • модифицированные пружинные узлы

Сборка сруба

 

  • укладка межвенцового утеплителя

  • сверление отверстий для нагелей

  • установка модифицированных пружинных узлов

  • сборка перекрытий с укладкой балок

  • сборка элементов крыши с устройством обрешетки 

  • покрытие крыши рубероидом

Хозяйственные, бытовые и организационные расходы

 

  • осуществление технического надзора за ходом строительства

  • организация снабжения объекта материалами

  • уборка мусора и укладка оставшегося пиломатериала

Напишите нам, мы ответим на все ваши вопросы
Заполните форму, и менеджер свяжется с вами для обсуждения деталей